Receive for Free - Discover & Explore eNewsletter monthly with advance notice of special offers, packages, and insider savings from 10% - 30% off Best Available Rates at selected hotels.
venues & services
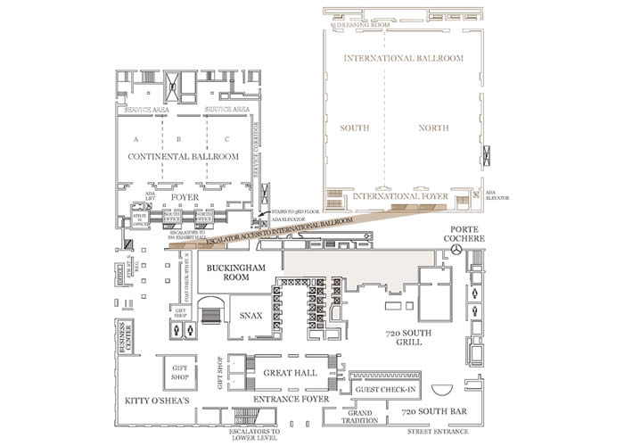
Explore the event space and meeting facilities at Hilton Chicago that spans over 234,000 square feet on 7 floors.
|
Lobby Level |
Second Floor |
|
Third Floor |
Fourth Floor |
|
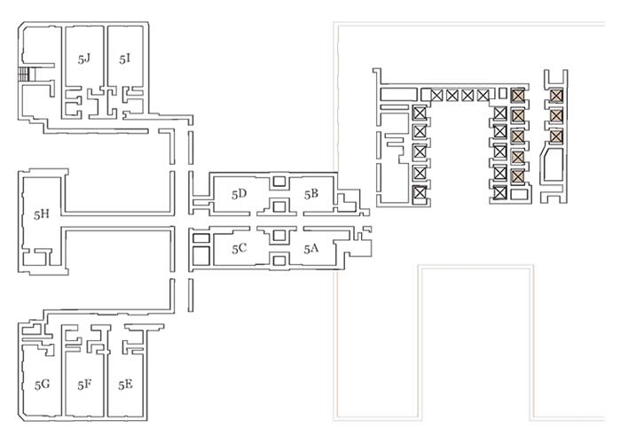
Fifth Floor |
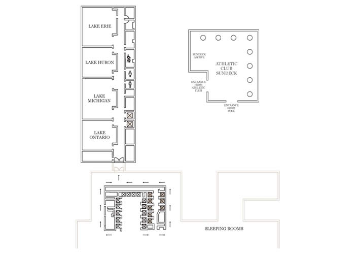
Eighth Floor |
|
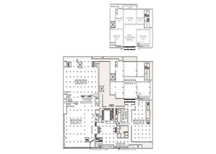
Lower Level |









